Early Notification: New Application Express Car Wash @ Apperson & Foothill

Posted on 12/12/2025

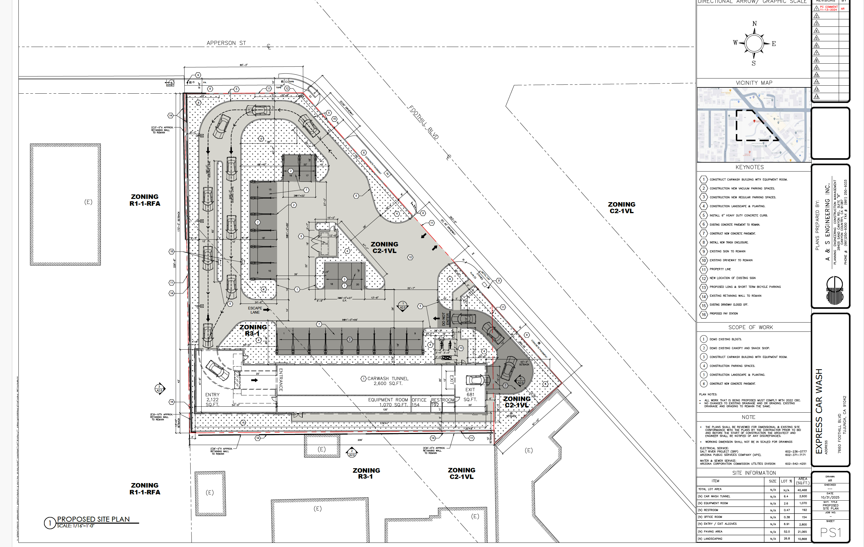
An application for an Express Car Wash has been filed with the Department of City Planning.  This will be the third time that an application has come before the community for a car wash at this site.  Due to the. Zoning changes needed a public hearing is expected to be held.  The STNC Land Use Committee will reach out to the applicant and schedule them to present their plans at a future meeting.  The next meeting of the STNC Land Use Committee will be held on Monday, January 12, 2026 at 7:00PM on Zoom.  Look for the meeting agenda January 7. 

Are you sure you want to remove this?

Please enter the email address you would like to send this to